Wychwood Neighbourhood Branch Library Restoration and Addition
Shoalts & Zaback Architects
Toronto, Canada
- Year
- 2022
- Category
- Institutional > Libraries
- Type
- Educational
- Firm
- Shoalts & Zaback Architects
- Location
- Toronto, Canada
- Award
- A+ 2023 · Finalist

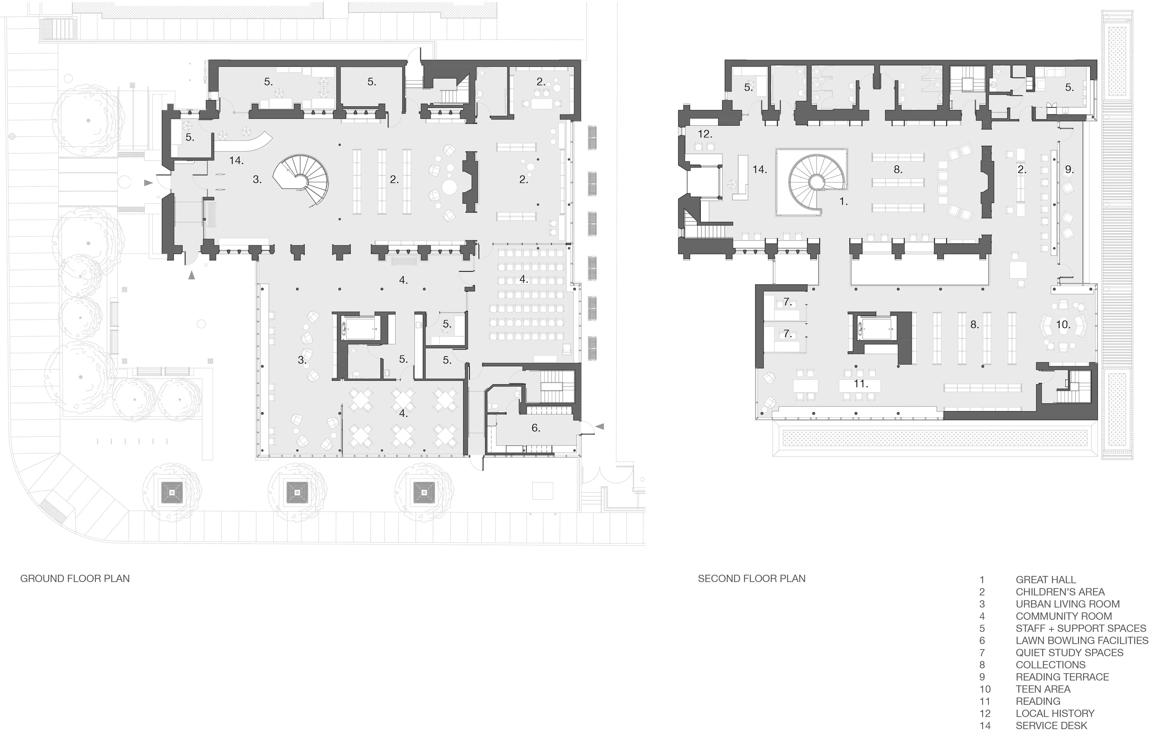
This Carnegie Library, designed by Eden Smith and Sons in 1916, followed Arts and Crafts design principles. In comparison to typical public buildings of the day, the Wychwood Library was simple, well-proportioned, and stripped of unnecessary decorations. However, over time, the clarity of the original library plan was lost. The project was an opportunity to embody both the history and the evolution of the Library building type. Originally the library was a quiet sanctuary for books. Today’s library is more outward focused and engaged with its community. It is a lively public space where people meet, make connections, and join events. We like the metaphor of the “community kitchen,” the place where the party happens, where everyone wants to be. The project restores the clarity of the original, with its book-lined hall and cozy fireplaces, and pairs this with a contemporary twin that is open to the street and new possibilities. The original library basement accommodated the children’s story times and collection. The upper level accommodated the adult collection and quiet study tables. The original entry was on an elevated landing leading only to the adult area. The main entry to children’s was a separate exterior entry. The two levels were quite disconnected. A previous project had closed the original entry. We reinstated the original entrance and gently lowered the grade. This achieved full accessibility. It also established the lower level as the main level. Inside a new dramatic circular stair fully integrates the two levels. We carefully wrapped the addition around the original library on this compact urban site. We used a continuous skylight to retain the natural light inside the restored great hall while preserving the original form. The restoration work in the great hall included repairing and restoring the original wood hammer beam trusses and wood decking. Custom wood shelving, entry doors and study tables recreated the original ambiance of a wood lined refuge in the middle of a busy city. This millwork also included space for the invisible introduction of the required ductwork and sprinklers. On the interior of the addition the wood ceiling, millwork and wall paneling are all clear finished ash to contrast with the original dark stained wood of the original building. This helps to distinguish between new and original building fabric. Exterior restoration work included repairing and restoring the original brick, stonework, wood leaded glass windows and the slate roof. The addition is clad in slate, similar to the original slate roof. The form of the addition is based on an analysis of the underlying geometry of the original building. Through the use of a shared geometry, the addition is contemporary in expression, yet related in a compatible way. We used boardform garden walls to create a sheltered entry court adjacent to the busy street. The completed project forms one unified space that embodies both the history and the evolution of the library. It integrates the best of both worlds. Team Members: Gerry Shoalts Eric Riddell Shawn Butler Jamie Rickard James Steacy Adam Jerebic Suzanne Fast Anton Freundorfer Avedik Mora Eric Bouchard Jodie Beauregard Consultants: Phil Goldsmith, Heritage and Collaborating Architect RCJ Engineers, Structural Engineers HHA Angus, Mechanical and Electrical Engineers Josselyn Engineering, Civil Engineer Wentworth Landscape Group, Landscape Architects
Collaborators
1

















