Xiamen Shophouse Commune
SANJ DESIGN STUDIO
Xiamen, China
- Year
- 2024
- Category
- Commercial > Commercial Interiors (<25,000 sq ft.)
- Type
- Commercial
- Firm
- SANJ DESIGN STUDIO
- Location
- Xiamen, China
- Award
- A+ 2025 · Finalist

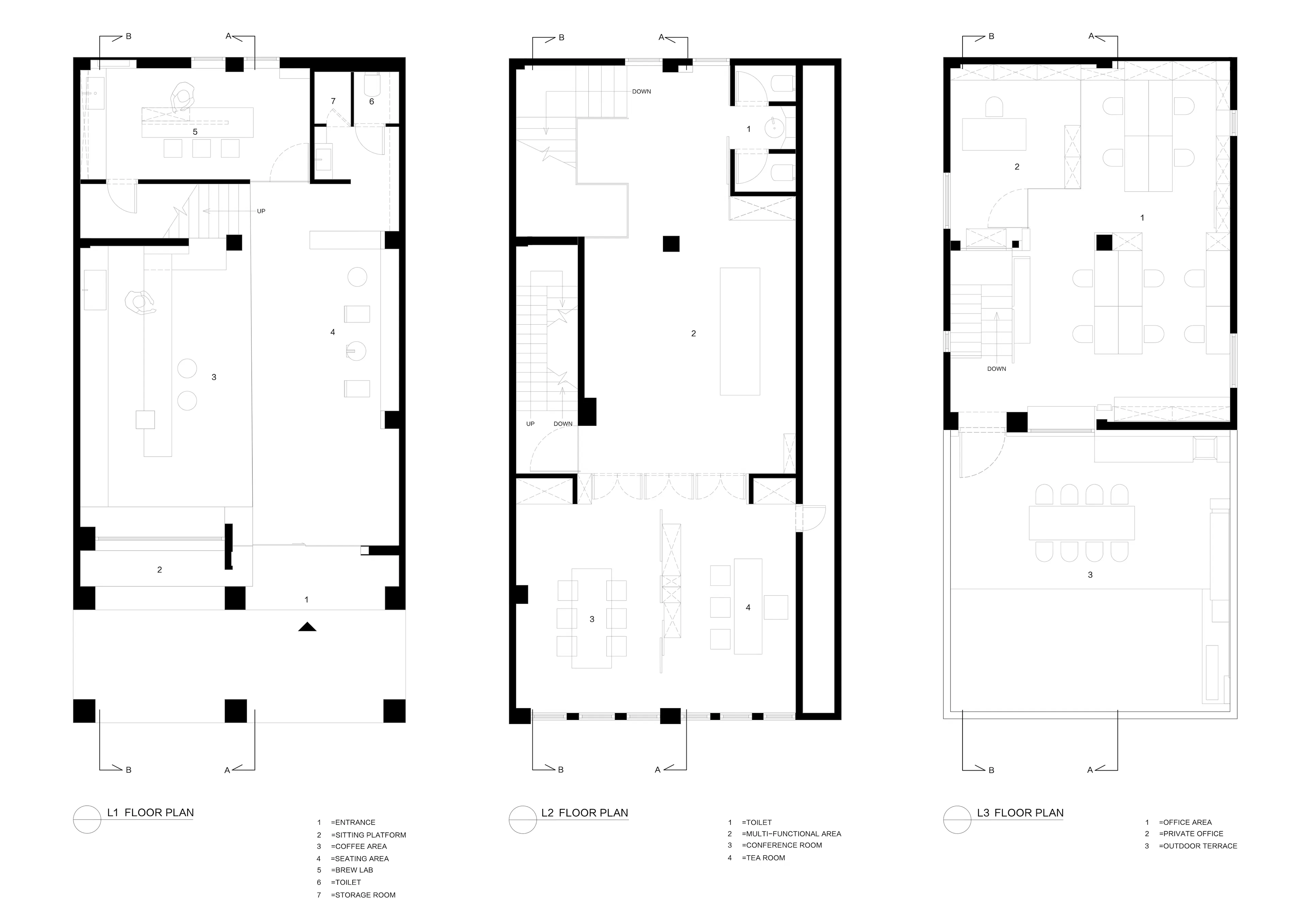
SANJ DESIGN restored & renovated a conservation shophouse into a ‘workplace+cafe’ space. Facade and structure is preserved, and the interior is revitalize with new functions to promote environmental and sustainable performance for existing heritage building without adversely impacting its cultural heritage significance. It aims to serve as gathering point for local communities in the historic building and share their life experiences of the old town. Strengthening the designer team's understanding of the local culture and history background for future urban design studies. The interior structural space was retained and given new functional usage: first floor serves as a community coffee space, second floor serves as an local collection gallery and group activity space, and third floor serves as design office space. The retained structure is harmoniously combined with the space and exposed, to show its unique sense of historical precipitation, making it the main feature wall in the space that connects the entire building, allowing people to follow the footsteps of history and explore it. The space not only retains the historical charm of the arcade building, but also gives it new vitality through restoration and transformation through design techniques. Using local building materials such as rust stone, granite, and southern Fujian red bricks that are familiar to locals, combines new and old. The full-height red brick wall feature further inherit the memory of history. With the rapid changes of the city, many historical cultures are gradually disappearing. SANJ DESIGN hopes to connect the humanistic interaction of the local community and connect the local cultural history as a mission to explore a deeper history of old Xiamen City as a trace and continuation of the city's memory, and actively participate in the old city upgrade and development, and participate in the practical actions of urban symbiosis.
People
1Collaborators
1













