Kampung Mrican Phase 1
SHAU
Yogyakarta, Indonesia
- Year
- 2024
- Category
- Landscape & Planning > Urban and Masterplan
- Type
- Cultural
- Firm
- SHAU
- Location
- Yogyakarta, Indonesia
- Award
- A+ 2025 · Popular Choice

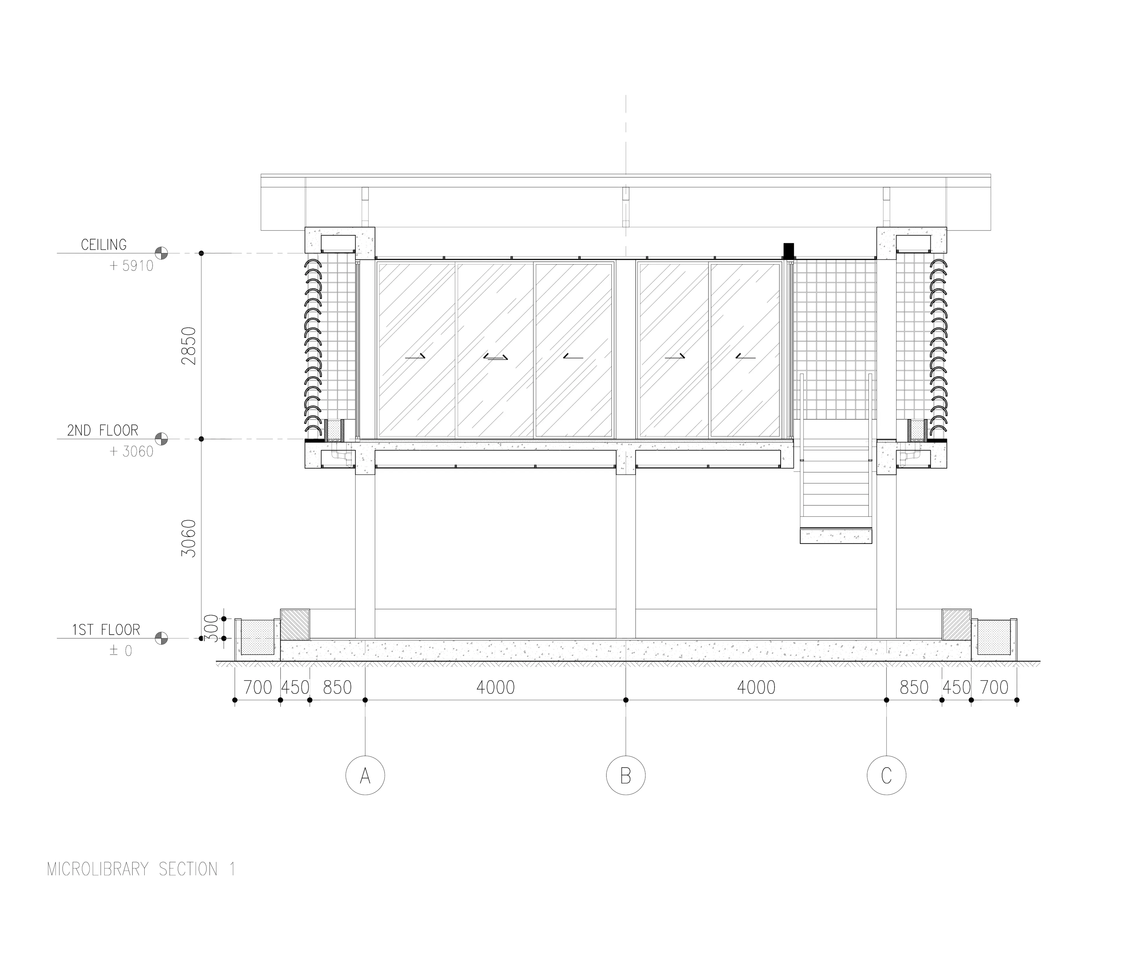
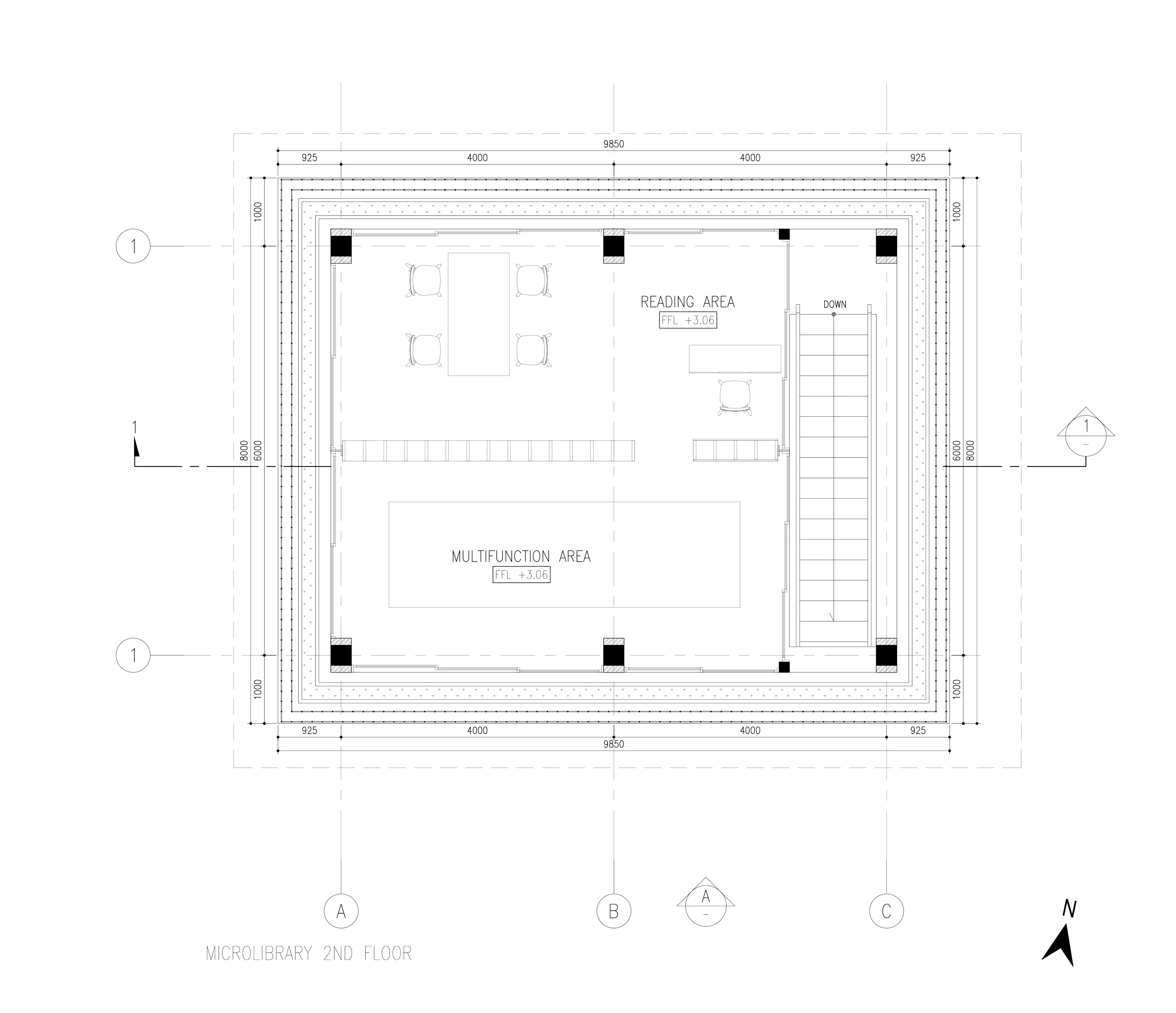
Kampungs (villages) represent a distinct urban form in Indonesian cities, characterized by high-density, low-rise buildings. Kampung Mrican is near two large universities and provides residential rentals. Improving kampungs demands context-sensitive, acupunctural design rather than top-down planning, ensuring the preservation of original fabric and identity. In collaboration with Instansi Direktorat PKP (Ministry of Public Works), SHAU designed a library, playground, public space, flood-control post, urban farming facilities, bridge, and sidewalk system. The aim is to enhance living conditions by upgrading infrastructure, improving pedestrian networks, rebranding the village, and incorporating educational and play elements. The planning process involved kampung residents. Urban and social analyses guided site selection, with the residents’ active participation in the design led by our socio-cultural partner, Pauline Boedianto. The walkway along the river was the successful outcome of negotiations that necessitated a setback from the existing residences. Safety features, like flood-control post and fences, were designed using an interpretation of batik patterns, integrating green plants and street lighting. Sidewalks display historical Javanese texts conveying environmental and educational messages. The signages provide a contemporary identity with local context. The urban gardening community received upgraded facilities. They produce eco-enzyme products, an organic recycling practice. Microlibrary Pringwulung was designed to allow various functions underneath the volume on stilts, including weddings, local events, and motorbike parking. Its terracotta facade plays with batik pattern motives from Yogyakarta, filtering sunlight and heat while allowing cross-ventilation. A single custom terracotta shingle is used and placed into five different positions on a steel mesh for easy construction. The terracotta is manufactured merely a few blocks away. The microlibrary, a renovated Joglo community space and an upgraded urban farm, form an activity hub in the village. The playground combines cultural and play activities, integrating traditional games into the plaza above the wastewater treatment facility. It features swinging seats, merry-go-rounds, a slide, and a beloved ‘Wayang’ (shadow puppet) figure of Gatotkaca, which corresponds to the street name.
People
1Collaborators
2lead
collaborator



































