Microlibrary Pringwulung
SHAU
Yogyakarta, Indonesia
- Year
- 2024
- Category
- Concepts > Architecture +Community
- Type
- Educational
- Firm
- SHAU
- Location
- Yogyakarta, Indonesia
- Award
- A+ 2025 · Finalist

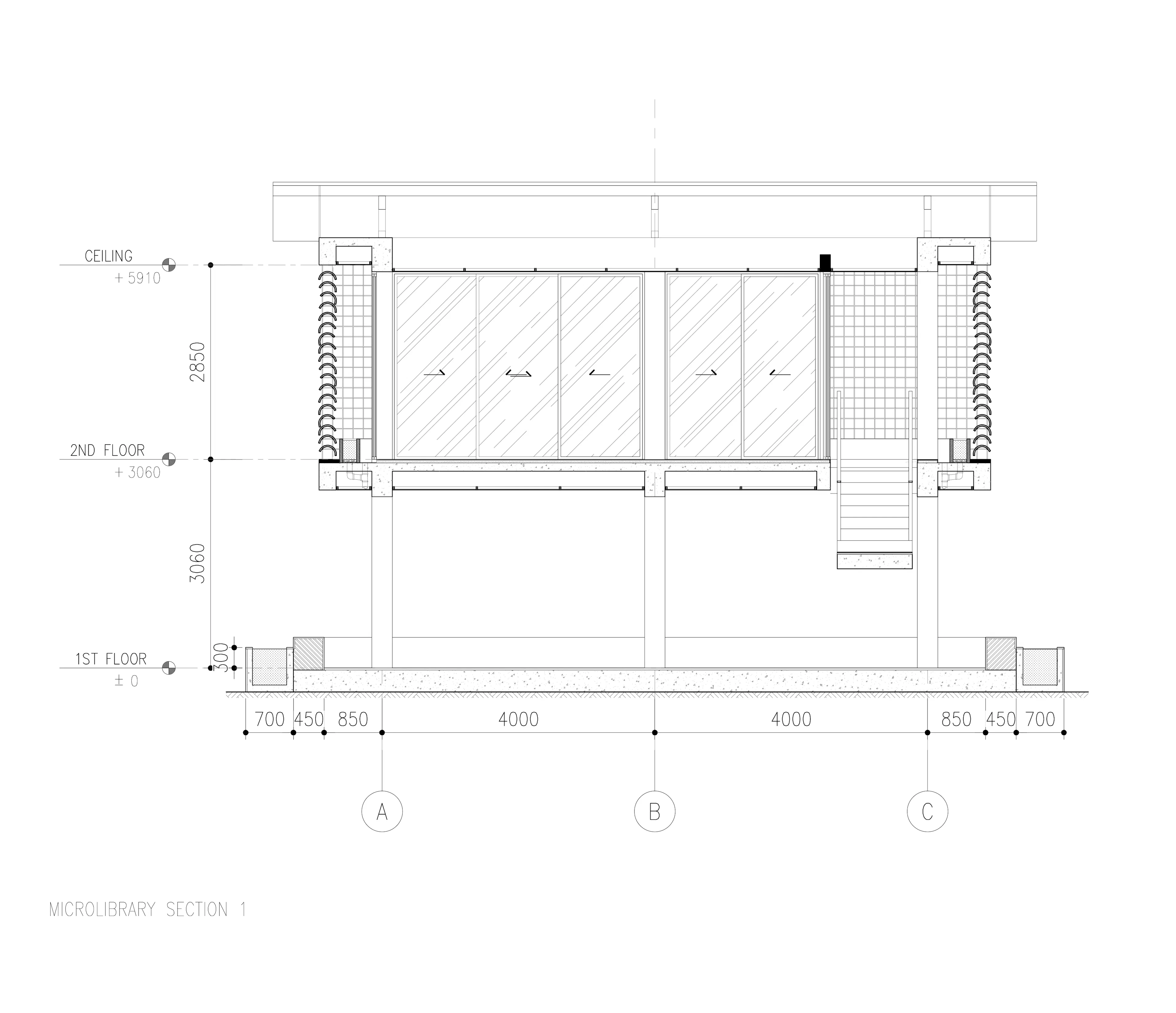
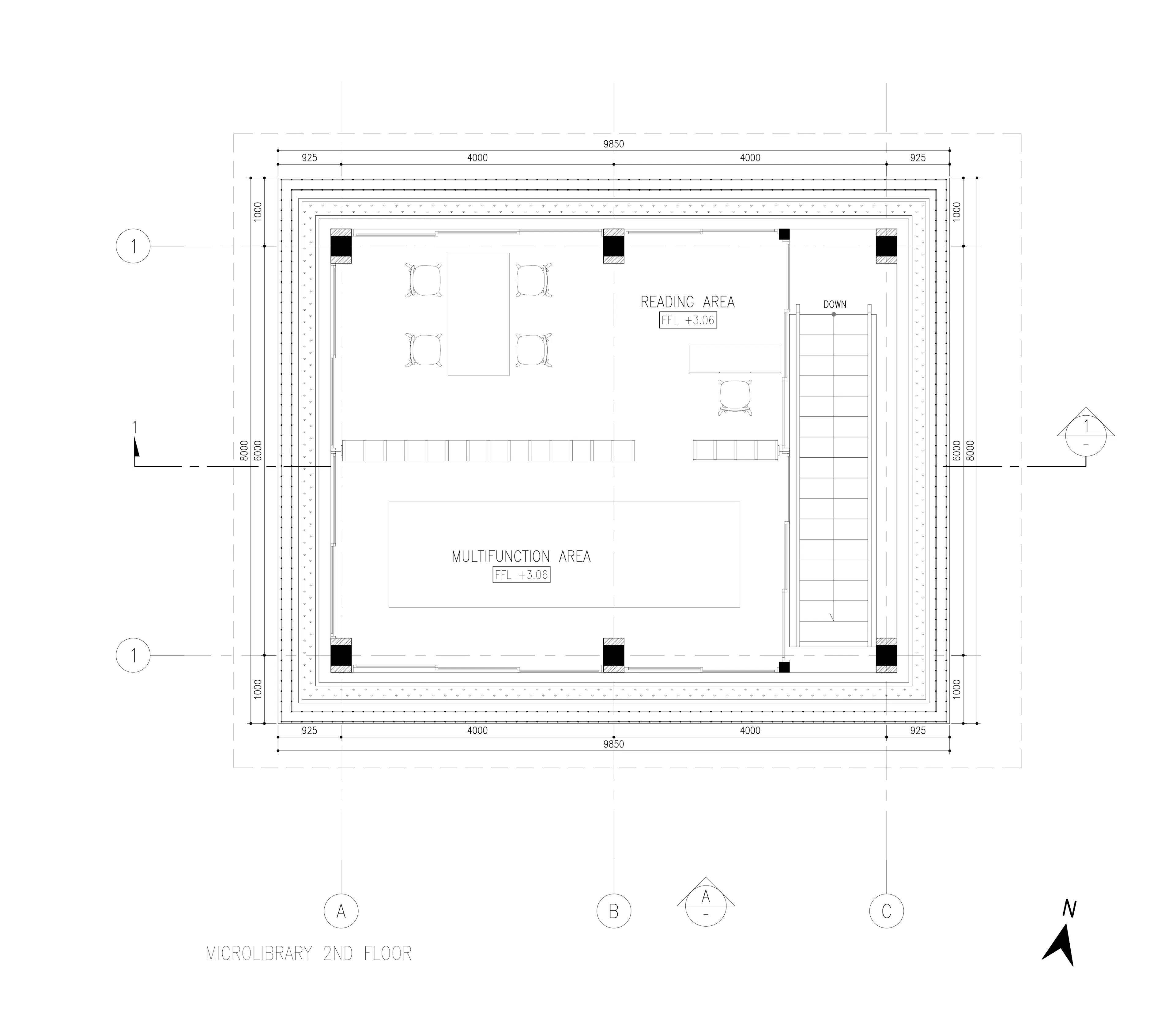
Microlibrary Pringwulung is part of the Microlibraries project initiated by SHAU. These are unique neighbourhood reading facilities and community spaces under 250 square meters, designed to fit Indonesia's tropical and social context. Funded through corporate social responsibility and government support, eight microlibraries have been completed since 2015, including a 2000-ice-cream-bucket Microlibrary Bima in Bandung and an FSC-certified Microlibrary Warak Kayu in Semarang. Each microlibrary operates through a multiple-stakeholder model. Microlibrary Pringwulung is the first to be integrated into a village revitalization initiative, the urban acupuncture intervention of Kampung Mrican Phase 1. It is connected to a public space network, including the renovated pendopo, community garden, and surrounding streets. The microlibrary is designed to accommodate various functions underneath the volume on stilts. Together with its neighbouring Pendopo (a Javanese pavilion), they create an informal public square where a shaded, open-air space seamlessly connects beneath both roofs, enabling larger events such as weddings, Idul Fitri, and other celebrations, shielded from heat or rain, making it a comfortable, multi-programmatic urban space that is flexible. Material choices are guided by local construction culture. We discovered terracotta craftsmen merely a few blocks away. Clay is a widely used construction material in the village, and it is essential to blend in while leveraging local manufacturing knowledge. The Microlibrary’s façade, a breathable shading screen crafted from locally manufactured half-cylindrical clay shells, is tied into a double layer of rebar mats. Rotating the shells creates a distinctive local batik pattern while providing shade, allowing natural daylight, protecting against rain, and enabling cross ventilation to ensure comfort without air conditioning.
Collaborators
2lead
collaborator




















